36
$688,109 Sale
Listed 3 hours ago
109 ORGAN CRESCENT
· 3
· 2.0
· 2
· 700 - 1100
Key Facts
Key facts for 109 ORGAN CRESCENT
Property Type
House, House
Parking
Garage: No, 2 parking
MLS #
X12456896
Size
700 - 1100 sqft
Basement
Finished, N/A (Finished)
Listed on
-
Lot size
-
Tax
-
Days on Market
-
Year Built
-
Maintenance Fee
-
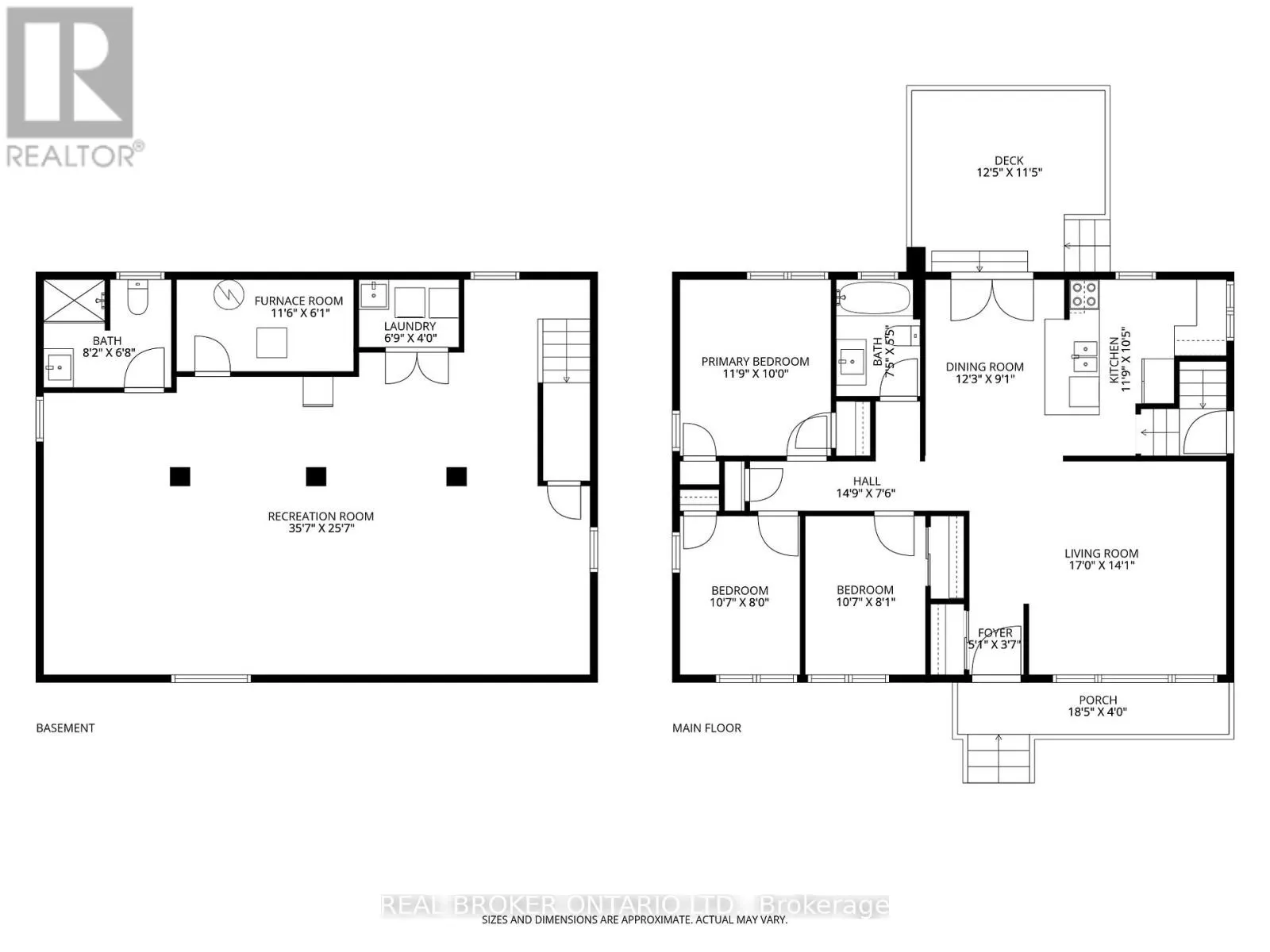
Description
Welcome to 109 Organ Crescent a beautiful bungalow nestled in Hamiltons sought-afterHuntington neighborhood on the East Mountain. Literally steps from Faye Ave Park, and moments from the mountain brow. Thoughtfully updated and carefully maintained from top to bottom, the bright, open-concept main f...loor features restored original hardwood and a stunning custom kitchen with quartz countertops, stainless steel appliances. The spacious living area flows seamlessly to a dinette, which opens to a deck overlooking your private backyard ideal for relaxing or hosting family gatherings. With three bedrooms and two full baths, theres plenty of space for growing families or down sizers alike. The fully finished basement offers impressive versatility, featuring a large recreation area, a second full bathroom, separate laundry, and potential for an in-law suite with a separate entrance and high ceilings. Major updates include electrical, roof, furnace, and appliances. Located near parks, schools, shopping, and public transit, this turnkey home offers the perfect balance of comfort, style, and convenience in one of the Mountains most family-friendly communities. Don't miss your chance to make this your new home! (id:10452)
Similar Properties (No results)
Room Types
Bathroom
-
Dimensions 2.49 m x 2.03 m
54.41 sqft
Bedroom
-
Dimensions 3.23 m x 2.44 m
84.83 sqft
Bedroom
-
Dimensions 3.23 m x 2.46 m
85.53 sqft
Listing courtesy of: REAL BROKER ONTARIO LTD.
This REALTOR.ca listing content is owned and licensed by REALTOR® members of The Canadian Real Estate Association.