45
$649,000 Sale
Listed 2 hours ago
52 RIDGEWOOD DR Drive
· 3
· 1.0
· 6
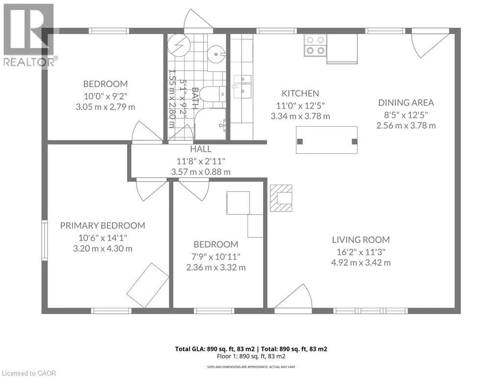
· 890
Key Facts
Key facts for 52 RIDGEWOOD DR Drive
Property Type
House, House
Parking
Garage: Yes, 6 parking
MLS #
40774774
Size
890 sqft
Basement
Unfinished, Crawl space (Unfinished)
Listed on
-
Lot size
-
Tax
-
Days on Market
-
Year Built
1965
Maintenance Fee
-
Description
Welcome to 52 Ridgewood Dr, a 3-bedroom, 1-bathroom cottage in Turkey Point, Ontario, family-owned for over 50 years and located on a quiet side street. It's steps from public access to long sandy beaches on Lake Erie, the new pickleball courts, playpark, and pavilion, plus the Turkey Point Marina f...or world-class fishing & water sports. Turkey Pt includes extensive hiking, biking, and walking trails. Upgrades feature a roof (2019), windows (2020) and 200-amp electrical panel (2020). The detached barn/garage/bunkie has a 60-amp panel for storage or conversion to additional space. This is a great investment in property located in S/W Ontario to build your family memories. Enjoy the best of Norfolk County with local produce stands, wineries, and small-town charm. (id:10452)
Similar Properties (No results)
Room Types
3pc Bathroom
-
Dimensions 9'2'' x 5'1''
46.6 sqft
Bedroom
-
Dimensions 10'11'' x 7'9''
84.6 sqft
Bedroom
-
Dimensions 9'2'' x 10'0''
91.67 sqft
Listing courtesy of: RE/MAX ERIE SHORES REALTY INC. BROKERAGE
This REALTOR.ca listing content is owned and licensed by REALTOR® members of The Canadian Real Estate Association.